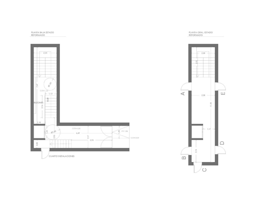
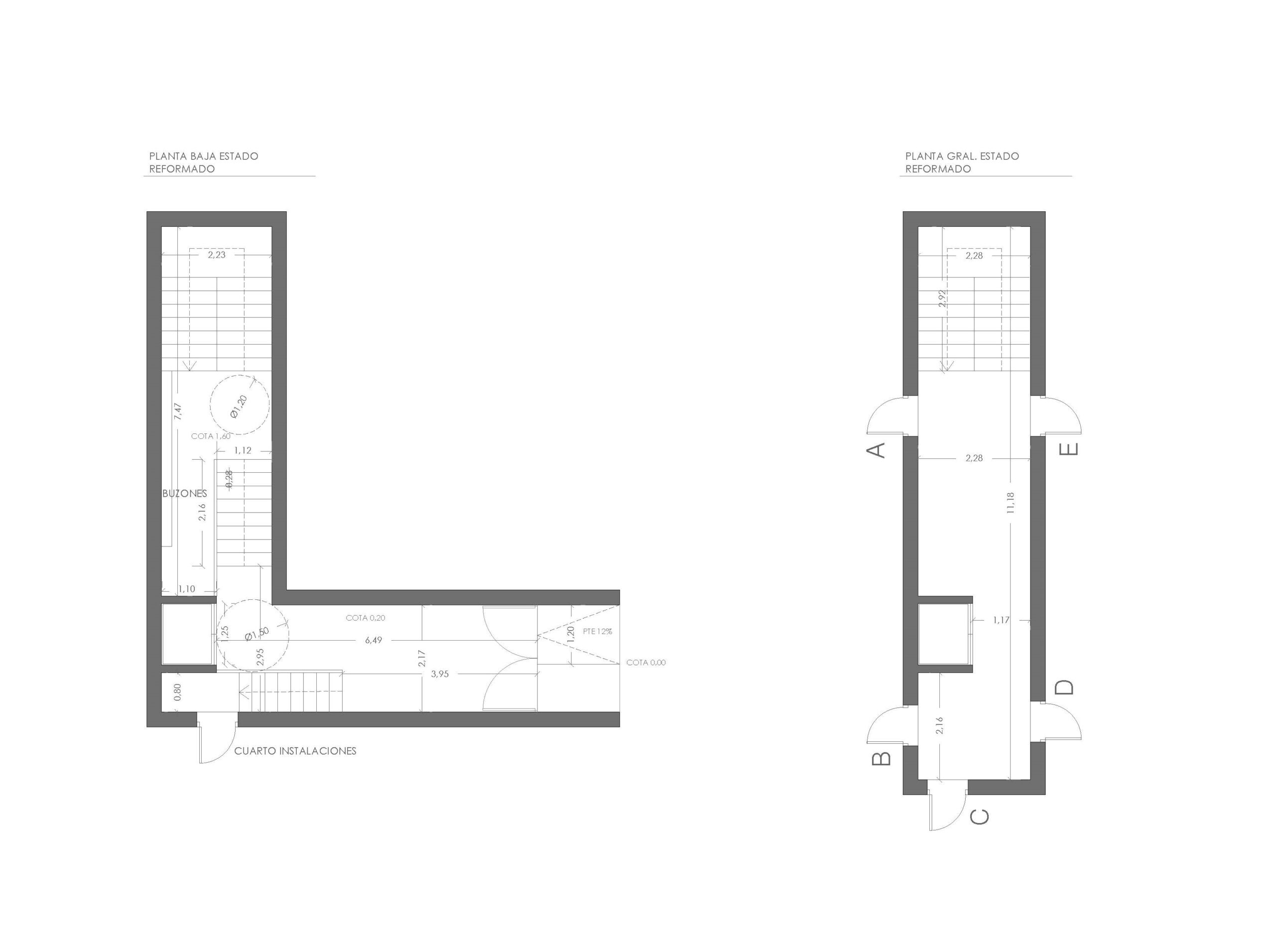
INCORPORACIÓN DE ASCENSOR A EDIFICIO DE VIVIENDAS

Se realiza el proyecto para incorporar un ascensor en la zona más accesible desde el portal, ya que las plantas del edificio tienen todas la misma forma y hay que adaptarse al ancho existente en las zonas comunes.